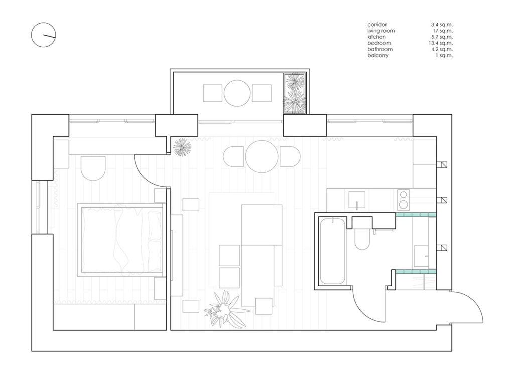
這是一間室內坪數在13坪左右的小住宅,妥善的運用 空間分割 及 串連 的方式
為陰暗的空間引進採光,讓我們來分享設計師是如何做提案的。


(圖/FB DeZone) 
(圖/FB DeZone)


首先吸引到注意的是LDK的大面積引入光線,來補足暗房(浴室)空間自然光線的不足。
設計師使用了玻璃磚的材質,讓潮濕的空間有基礎上的防水效果以及透明的特性。將自然光線一路從開放廚房的區域透過浴室進而一直到玄關。
在空間尺度上的整合也很得宜。
玄關進來稍微調整後的設計思維,讓視覺上不會直接對到落地窗,讓空間上有過到的感覺,並且設計了玄關的穿鞋區及污衣桿。
這在設計上非常的主流而且好用。
我們總是會有一些並不會每天需要換洗的大衣或外套,就可以掛在這個位置,而正下方則是放置室內及外出的鞋子。

(圖/FB DeZone) 
(圖/FB DeZone)
在空間的配色上大量運用了舒服的灰泥色系,使空間色塊看起來飽和。
搭配上有些無印風的木紋色,這樣在家具家飾上較不會因為空間色彩被定型,而產生選購上的難題。
另外強化了異材質的配色,在所有的門組及門片上,當牆壁色一路到門組或櫃體上,
使用了黑色作為材質上的斷開,來強調空間俐落的線條感。

(圖/FB DeZone) 
主臥房的設計中也藏有巧思。
因為房間空間不夠。所以在衣櫃的設計上,使用織布品來代替衣櫃門片的這樣子的設計手法。
一來增加一些空間上的過道或是喘息空間; 二來是衣櫃高度很高,這會在狹小的空間中更顯壓迫,所以運用了更顯柔和 輕盈的材質作為遮蔽的效果。
假使一直煩惱我今天買了小空間的住宅,自己左思右想都不知道怎麼規劃會比較好。可以參考這篇的分享,或許能夠可以有更多的思維及想法。
也可填寫我們的線上表單,讓我們從建案開始蓋起就先行做客變規劃,越是使用坪數小,更應該做徹底的設計規劃。








