一、裝修起源收藏
一開始是結婚的關係而買了房,當初因為想住在新的電梯大樓,都是往重劃區的房子去找,不過,後來雖然買了新成屋,但是室內只有14坪,跟太太討論後認為如果只是買家具簡單布置家裡,應該會浪費不少空間,所以才決定要找設計師裝修,希望能把小房子的每一個空間都好好規劃利用。
二、找設計師的過程收藏
後來我們開始逛100室內設計找設計公司,被我們看到一眼就非常喜歡的設計公司-每感日常,作品風格直接中了我跟太太的心,收費方式也寫得很清楚,想說如果約出來談的感覺不錯,那就無懸念直接選他們了,還好真的如我們所想得順利,所以就簽約進行工程囉!
三、需求規劃收藏
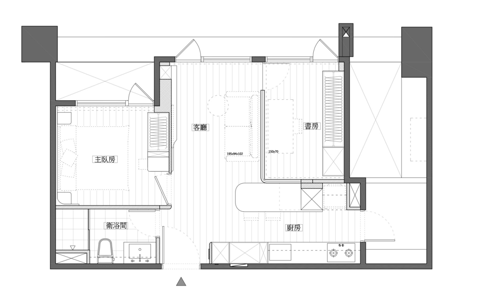
先奉上改造前後的平面圖
Before平面圖

After平面圖

格局需求
我來說明一下,原本房子是兩房格局和有隔間的廚房,一進門感覺非常窄,廚房有隔間看起來也是有點壓迫▼


因為家裡目前只會住我和太太兩個人,也有提出在家辦公的需求,於是設計師把次臥室改成玻璃隔間書房,看起來更開闊。另外,我們一直都很希望有開放式廚房和中島餐桌的設計,因此去掉廚房的牆,將這兩點需求規劃進去。
風格需求
希望以簡單、乾淨的風格為大方向,以白色和木頭材質塑造整個家的風格,也有跟設計師特別提到我喜歡木皮的質感,太太則是喜歡弧線、大理石紋。
像是可以看到衛浴和我們喜歡的風格真的差太多,所以除了馬桶那些設備類的之外,磁磚、檯面那些材質都換新。▼

收納需求
還有個非常重要的需求,那就是需要很多的收納空間,尤其坪數小,能做櫃子的地方希望都盡量規劃,像是玄關的頂天櫃,書桌後方的大櫃子,還有主臥室的隔間牆往客廳退後了一點,多出了置入衣櫃的空間。
四、完工分享收藏
玄關
因為把廚房的牆改掉了,設計師就把廚具和玄關櫃、汙衣櫃結合,整排都是白色的看起來比較簡單俐落,旋轉鞋架是一開始我們和設計師說想要做的,但是入住後發現沒有想像中那麼好用~真是有點後悔啊,不過設計師幫我們規劃的汙衣櫃真的很不錯,上面還可以放一些小東西很實用。


餐廚區
廚具是建商附的,還好是附白色,不然又要花更多錢改掉!(鬆了口氣)不過設計師有依照我們的需求多加洗碗機和感應式水龍頭。
然後很感動的是雖然家裡小,卻還能做一座中島餐桌,為了不要讓這邊看起來太沉重,所以用了透明桌腳,本來是選玻璃材質,但是不管怎麼看都覺得有一點綠綠的不是很喜歡,後來設計師就建議我們試試壓克力材質,效果還不錯!


中島餐桌這一邊延伸過去是電器櫃和冰箱,也都是白色的,整體的一致性讓餐廚區看起來非常乾淨整齊!這邊還多做了許多收納空間,像是中島下面的零食備品櫃、旁邊的抽盤式電器櫃都很順手好用。

兩盞吊燈和木頭餐椅的搭配看起來非常溫馨,我和太太都很喜歡。

客廳
電視下面的平台是當初太太在網路上看到有人做這個設計,就說比起白白的電視牆,她想要多一個這個平台,所以主要是裝飾用途,旁邊延伸過去的開放式櫃就是放一些展示物、PS5和switch。



前面有提到我喜歡木皮質感,所以可以看到我們家的天花板或是牆面都會有一些類似的裝飾,衛浴門的木格柵也算是木頭的一種變化,讓我們家雖然以白色和木頭材質居多,但整體上一點都不死板,是很有層次感的!

書房
因為只需要一間臥室和常常在家辦公的關係,設計師當初就建議將次臥室改成書房,而且為了解決小房子看起來很狹小的問題,書房隔間替換成了玻璃隔間,看起來整個家真的有開闊很多!後方的大收納櫃除了收衣服,也能收行李箱、吸塵器這一類比較大型的物品。


臥室
我們還蠻喜歡設計師建議的弧形床頭板設計,我覺得床頭有個簡單的平台就好,而太太則是希望有個抽屜可以放點小東西,設計師就針對我們各自的需求客製了,很明顯看出我們誰睡在哪一邊了吧!哈哈


衣櫃旁邊的平台是化妝桌,其實仔細看圖上衣櫃和化妝台之間還有一個淺櫃,這邊就是給放太太的化妝品、保養品等等用的。


衛浴
原本建商附的衛浴風格有點俗氣,所以把磁磚、洗手檯的檯面都換掉了,磁磚選了太太喜歡的大理石紋,整體比起原本衛浴好很多。


五、裝修後記收藏
本來就有自覺小房子必須找設計師的重要性,果然入住後就發現經過設計師的巧手規劃,每一個角落都沒被浪費到,整個運用得很棒,也沒想到原來收納空間竟然能變這麼多(目前櫃子都還沒放滿),材質的變化也很不錯,不會太複雜又有設計感,讓我們家看起來真的比原本交屋後寬敞,目前也都住得很舒適。誠心建議和我們一樣買小坪數的要多留預算裝修,真的能化腐朽為神奇,這筆錢一定要勇敢的花下去!
不過除了找設計師很重要,自己也要多花點時間做功課,像我們是會上youtube看人家分享好用和不好用的裝潢、做了哪些東西後使用上的優缺點等等,對裝修這件事後來就有比較多想法和認知。
藉由多做功課能讓需求更明確,也就能和設計師溝通得更有效率,還有一點經驗分享,那就是我很建議列份需求清單,上面註明所有想買的家電、家具,讓設計師可以依照那些型號去規劃適合的櫃體、動線尺寸等等,這樣小空間就能利用得非常極致了。
總結一句:不要怕買小坪數不好住,怎麼做最有效的規劃才是重點!
【以上內容轉載自:100室內設計 【開箱】玻璃隔間書房X開放式餐廚X大收納,空間對了! 讓14坪木質小宅變得寬敞又好住! 】



